| 首 页 | 公司简介 | 新闻中心 | 产品集锦 |  产品目录 | 产品知识 | 联系方法 | 网上订单 | 电子邮局 | 
 
DEA-2L型电气控制箱(20MPa)
一、概述
  DEA-2L型电气控制箱,用于自动控制一套由U- ※※ AL 环式电动干油润滑系统,在油泵经过任意的间隔时间后、自动地使油泵运转,给油完成后自动停止。
  控制箱能发出“供油时间延长”、“油箱液位低”、“超负载运转”三种故障信号。设有一组外部接点,可向主机或主控室发送润滑系统运转状况(停止、运转、故障)信号。

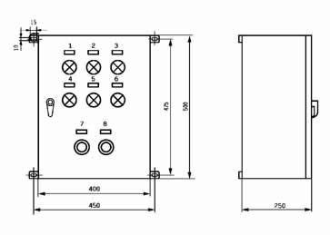
二、外形尺寸
三、标牌符号及文字
序号
符号
标牌文字
序号
符号
标牌文字
1
1HL
电源
5
5HL
油箱液位低
2
2HL
停止
6
6HL
超负荷运转
3
3HL
运转
7
S0
任意运转
4
4HL
供油时间延长
8
S1
故障复位
四、DEA-2L型电气控制箱接线端子图
五、使用说明
  1、适用主电源3N 50HZ AC 380V。
  2、适用环境温度-10℃~40℃,湿度90%。
  3、周围环境无导电的介质(气体、液体)。
  4、垂直安装,其倾斜度不大于5°。
Copyright © 2012 南通启动润滑设备有限公司 地址:启东经济开发区灵峰路698号
电话:0513-83209668 传真:0513-83308989 网址:www.ntqdrh.com E-mail:qd@ntqdrh.com