| 首 页 | 公司简介 | 新闻中心 | 产品集锦 |  产品目录 | 产品知识 | 联系方法 | 网上订单 | 电子邮局 | 
 
GDK02型电气控制箱(40MPa)
一、概述
  本产品适用于40MPa 双线终端式干油集中润滑系统中,用于控制润滑泵自动运转,向系统Ⅰ管线供送润滑脂,给油完成后自动换向向系统Ⅱ管线供送润滑脂,完成一个润滑周期供脂后自动停止。
  GDK02型电气控制箱为有监控控制结构,具有持续工作和自动工作二种工作状态,通过箱面的转换开关来切换。持续工作状态,当润滑泵启动后系统周而复始地持续向系统两条主管线供送润滑脂。自动工作状态,当与主机联锁信号接通后,润滑泵按系统设定的间隔时间定时向系统供送润滑脂,完成一个润滑周期后自动停止。
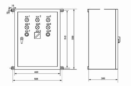
二、外形尺寸
三、标牌符号及文字
序号
标牌文字
序号
标牌文字
序号
标牌文字
1
工作准备指示
4
监控时间超过
7
警报试响
2
线I工作状态
5
超负载动转
8
持续-停止-自动
3
线II工作状态
6
贮油筒空
9
消除警报
四、GDK-02 电气控制箱外部接线图
五、使用说明
  1、适用主电源AC380V、50HZ。
  2、适用环境温度-10℃~40℃,湿度90%。
  3、周围环境无导电的介质(气体、液体)。
  4、垂直安装,其倾斜度不大于5°。
Copyright © 2012 南通启动润滑设备有限公司 地址:启东经济开发区灵峰路698号
电话:0513-83209668 传真:0513-83308989 网址:www.ntqdrh.com E-mail:qd@ntqdrh.com