|
首 页
|
公司简介
|
新闻中心
|
产品集锦
|
产品目录
|
产品知识
|
联系方法
|
网上订单
|
电子邮局
|
干油部分
电动润滑泵
手(脚)动润滑泵
加油泵
双线分配器
单线分配器
换向阀、操纵阀及其附件
稀油部分
稀油润滑装置及稀油站
稀油润滑元件
管路安装附件
管件部分
油气润滑元件
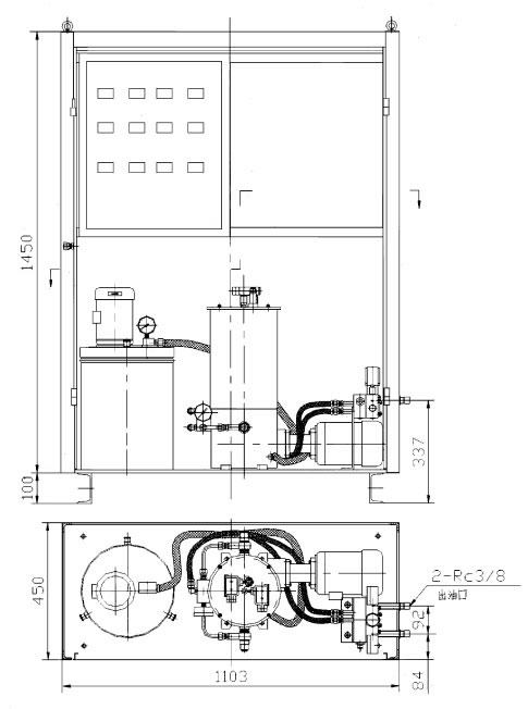
CDQ型电动润滑泵及装置(20MPa)
一、概 述
CDQ型电动润滑泵装置由DB型单线润滑泵、DJB-50型电动加油泵、ZYCDQ-DKX型电气控制柜、DR4-5型液压自动换向阀及防护柜组成,适用于双线润滑系统,也可取消DR4-5型液压自动换向阀则可适用于单线润滑系统。各组成部件的技术参数和外形尺寸详见本样本。
二、技术参数
1、系统公称流量:0~25、0~45、0~50、0~90ml/min
2、系统公称压力:20MPa
3、 加油泵公称流量:50L/h
4、加油泵公称压力:1.5MPa
5、单线泵电机功率:0.37kW(流量为0~25或0~45ml/min)或0.55kW(流量为0~50或0~90mL/min)
6、加油泵电机功率:0.18kW
7、单线泵贮油桶容积:8L
8、加油泵贮油桶容积:25L
三、外形尺寸
Copyright © 2012 南通启动润滑设备有限公司 地址:启东经济开发区灵峰路698号
电话:0513-83209668 传真:0513-83308989 网址:www.ntqdrh.com E-mail:qd@ntqdrh.com