| 首 页 | 公司简介 | 新闻中心 | 产品集锦 |  产品目录 | 产品知识 | 联系方法 | 网上订单 | 电子邮局 | 
 

24EJF-P型二位四通换向阀(40MPa)

一、概述
24EJF-P型(原SA-V 型)二位四通换向阀是一种采用直流电机驱动阀芯移动,以开闭供油管道或转换供油方向的一种集成化的换向控制装置;即使在恶劣的工作条件下(如低温或高粘度油脂),动作仍相当可靠。
该阀适用于公称压力为40MPa以下的干、稀油集中润滑系统以及液压系统的主支管路中,同时也可作二位四通,二位三通和二位二通三种型式使用。

二、技术参数

型号
公称压力Mpa
换向时间S
直流电机功率W
电源电压V
直流电机扭矩N.m
重量kg
24EJF-P
40
0.5
10
-220
20
13

使用介质为锥入度不低于220(25℃,150g)1/10mm的润滑脂(NLGI0#~3#)或粘度等级大于N68的润滑油,工作环境温度为-20℃~80℃。

 
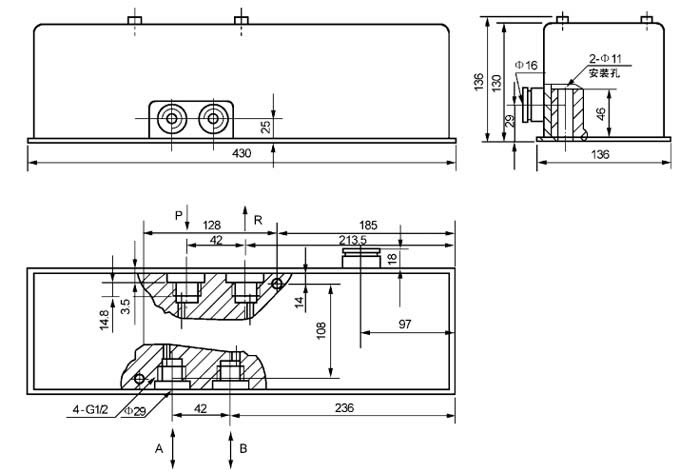
三、外形尺寸
 
四、工作原理
该阀主要由直流电机、限位开关、换向阀体,整流变压器装置等元件安装于同一底板上并置于防护罩壳内组成。
系统中的电控箱发出换向信号(系统末端压差开关发出)使直流电机作旋转运动,并通过偏心轮带动阀芯作直线往复运动。当阀芯从原位到达所需要的换向位置时,阀芯端部的挡板触动限位开关动作,发出电信号至电控箱,责令直流电机停止旋转,完成了换向过程。
五、使用说明
1、该阀应安装在系统被控主、支管路的前端,且位于通风、 干燥便于检查及周围无运动机构干涉的部位。
2、当作二位二通使用时,须把出油口“B”和回油口“R”封堵。
3、当作二位三通使用时,须把出油口“B”封堵。
4、电控接线按上图原理连接。

六、常见故障及排除方法
1、换向阀不换向。
可能无换向信号输入电机,线脚焊接脱落;电机轴与偏心轮松动未紧固;阀腔内进入杂质滑芯卡死等原因,查明后排除即可。
2、滑芯二端漏油。
主要是二端密封圈损坏引起,可能是密封圈库存久或长时间使用已老化,更换密封圈即可。
 
Copyright © 2012 南通启动润滑设备有限公司 地址:启东经济开发区灵峰路698号
电话:0513-83209668 传真:0513-83308989 网址:www.ntqdrh.com E-mail:qd@ntqdrh.com